咨詢熱線:400-0621-358 | 點擊報價
樓盤名稱
康城瑞府案例風格
現代輕奢風案例面積
106㎡設計師
周碩本案設計理念
DESIGN CONCEPT 本次服務的業主對于生活的格調以及品味很有要求。喜歡的風格想要輕奢又帶點溫馨,后期常駐人口只有一家三口,父親不時會過來暫住幾天。
該室整體裝修感受傾向于柔和,室內的配飾在不失精美的同時顯示出年輕人的朝氣蓬勃。柔和的線條與金色的搭配相得益彰,表現出了輕松寫意的同時也體現出了低調與奢華的內涵。
在保證設計風格強烈的同時,室內的功能性與細節的方向也一樣兼顧有序,從而也體現出了業主高品質的生活方式。
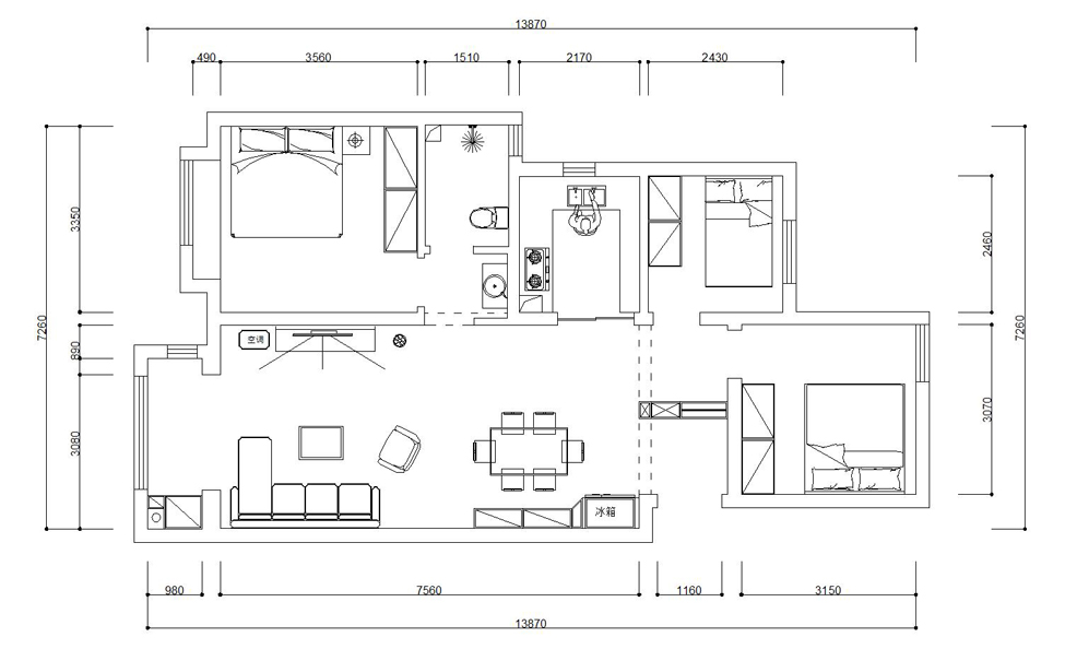
布局

平面

客廳

臥室

餐廳


▲ 上一條:沒有了!
▼ 下一條:泰豐花園
我家裝成這樣多少錢?