咨詢熱線:400-0621-358 | 點擊報價
樓盤名稱
孔雀城天璽案例風格
現代簡約風案例面積
144㎡設計師
周碩本案設計理念
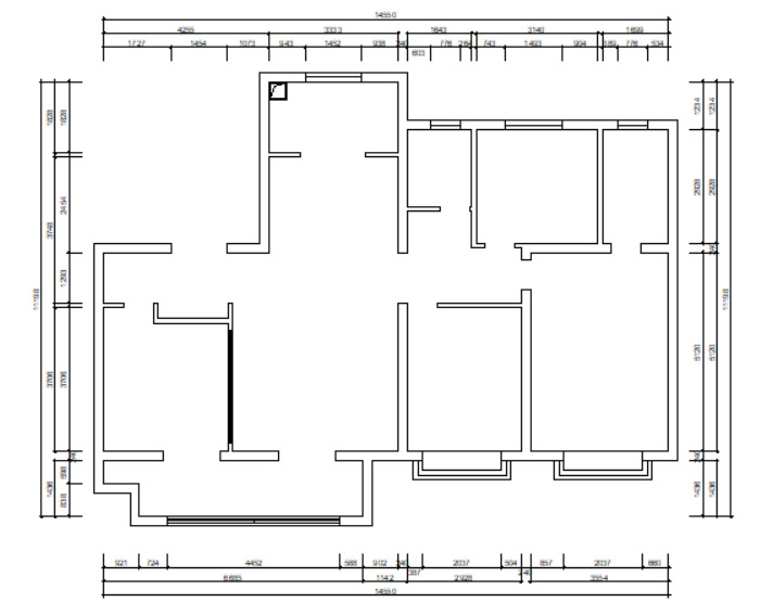
DESIGN CONCEPT 業主要求風格簡約,造型簡單大氣。通過簡單的改變房間功能用途讓房屋整體更加符合業主需求,再通過吃掉無用空間讓房屋里的布局更加符合動線,也從而提升房屋內的儲物空間和美觀性。衛生間干區墻體打掉再替換上玻璃隔斷,讓干區變得既明亮又顯整潔。根據業主想要在辦公和游戲時抬頭就可以看到妻子與孩子感受家的溫暖的需求,將書房與客廳的連接墻體打出一個窗戶,首先業主的需求得到了滿足,其次玻璃窗也起到了隔音降噪的功能,使房間的通透性增加的同時也能防止客廳的吵鬧聲影響辦公。
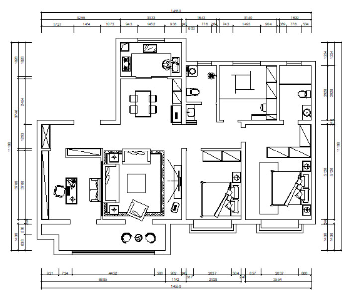
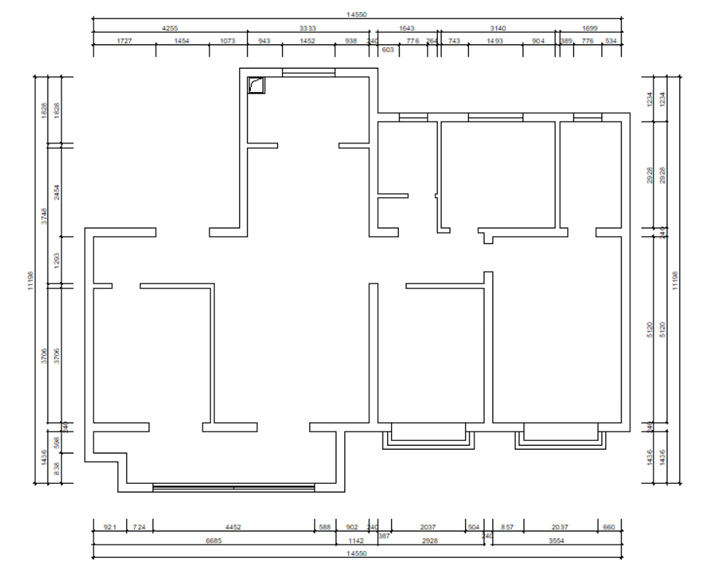
布局圖

平面圖


客廳


主臥

餐廳

走廊

我家裝成這樣多少錢?